全套砂石生产线设备可用于硬质石灰石、花岗石、玄武岩、河卵石、冶金渣等多种物料的骨料及人工造砂作业,适用于水电、建材、高速公路、城市建设等行业的应用。本文就针对全套砂石生产线作简单介绍。
制砂生产线概况
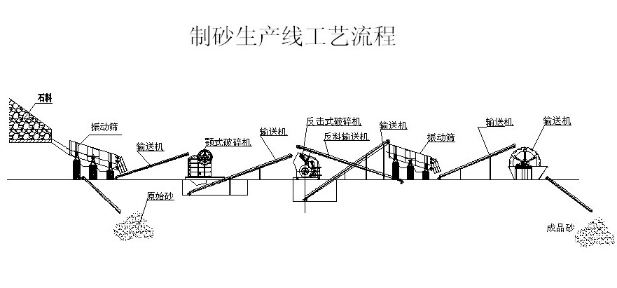
制沙生产线又称制砂生产线,也就是我们常说的机制砂生产线,这套生产线有振动给料机、颚式破碎机、冲击式破碎机、振动筛和胶带传输机等设备组台而成。根据不同的工艺要求:各种型号的制砂生产线设备进行组合,满足于客户的不同制砂生产线工艺要求。
点击咨询生产线相关问题
制沙生产线特点和优势
1、制沙生产线投资仅为同等处理能力常规生产线的1/3—1/5。
2、制砂生产线每吨砂石生产成本仅为常规生产线的1/3—1/4。
3、制沙生产线生产自动化程度高,每班生产人员为3人以下。
4、制砂生产线投资回收期短,一般3个月可收回投资。

制沙生产线俯瞰图
制砂生产线工艺流程图

制砂生产线工艺流程
易彩堂制砂生产线
河南易彩堂矿山机器 生产的全套制砂生产线设备,为您提供全面的技术支持,制砂生产线通常由制沙机、振动筛、轮斗洗砂机、胶带输送机、集中电控等设备组成;设计产量一般为50-500吨/小时。我公司历经数年的开发研究,将具有成熟水准的河卵石制沙机与公司其他系列产品相配套,设计出的全套制砂生产线,在市面上口碑较好。

易彩堂机器制砂生产线发货图
制砂生产线现场图

制砂生产线客户现场1

制砂生产线客户现场2
